マンション プレミストタワー靱本町
所在地
大阪市西区靱本町1丁目
9,680万円
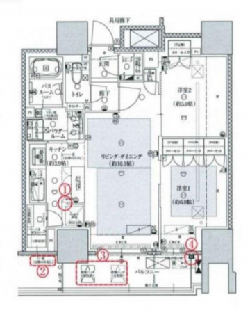
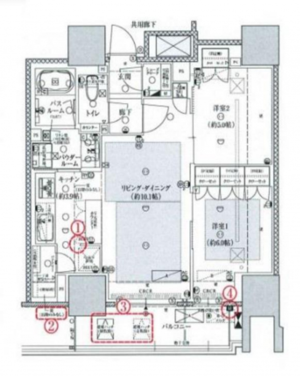
60.00m²
2LDK
・大阪メトロ「本町」駅徒歩1分の抜群のアクセス
・人気タワーマンションで資産価値も安定
・11階部分、明るく開放感のある住戸
・20帖超の広々LDKでゆったりとした暮らし
・収納充実の2LDKで使いやすい間取り
・ラウンジ・フィットネスなど共用施設が充実
・オートロック・24時間有人管理で安心の住環境
物件概要
- 交通
-
大阪メトロ四つ橋線 本町駅 まで 徒歩1分
- 専有面積
- 壁芯 60.00㎡
- バルコニー
-
面積不明
面積不明 - 所在階/階数
- 11階/36階
- 築年数
-
2023年
(令和5)
2月
築2年 - 建ぺい率
- 容積率
- 土地権利
- 所有権
- 構造および階数
- RC(鉄筋コンクリート) 造 地下1階 地上36階建
- 総戸数
- 小学校区
- 明治
- 中学校区
- 花乃井
- 地目
- 現況
- 空
- 引渡時期
- 相談
- 駐車場
- 駐車場月額
- 管理形態
- 全部委託
- 管理方式
- 管理会社
- 管理費
- 14,500円
- 修繕積立費
- 7,200円
- 上水道
- 下水道
- ガス
- 都市計画
- 用途地域
- 設備・条件
- 備考
- 取引態様
- 仲介









